L  U  M    |    LORENZUNDMICKEL Architekten

L  U  M    |    LORENZUNDMICKEL Architekten

ALLE          WOHNEN          ARBEITEN

ALLE          WOHNEN          ARBEITEN


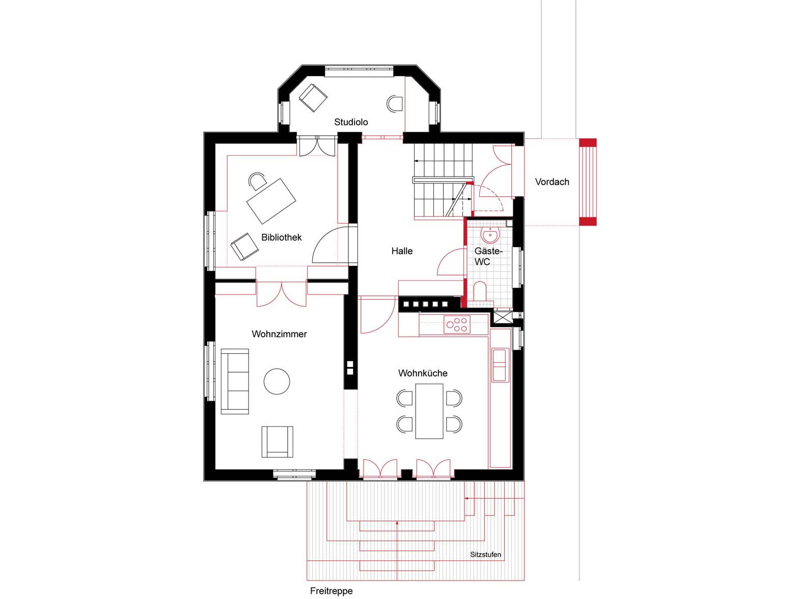
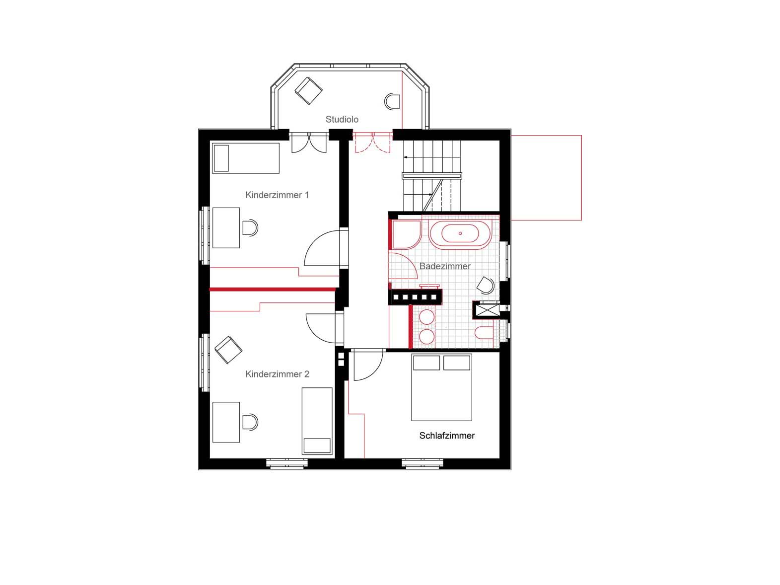
Haus Schiller

Berlin

Umbau eines Wohnhauses
Leistungen: Planung und Ausführung LP 1-8
Fertigstellung 2014 (Innen), 2017 (Außen)










LORENZUNDMICKEL Architekten
Partnerschaftsgesellschaft mit beschränkter Berufshaftung (PartGmbB)


Pariser Str. 44, 10707 Berlin
Telefon: +49 (0)30 23 605 200
E-Mail: architekten@lorenzundmickel.de





© LORENZUNDMICKEL Architekten PartGmbB


Kontakt          Impressum          Datenschutz