L  U  M    |    LORENZUNDMICKEL Architekten  
	
	
	
 
			 
			
		
	 
	
	
	 			
	
		
			
			
				
	
L  U  M    |    LORENZUNDMICKEL Architekten
 
 
			 
			
		
	 
	
	
	 														 
			
			
	
	
	
	
		
		
			
				
				
					
	
	
	
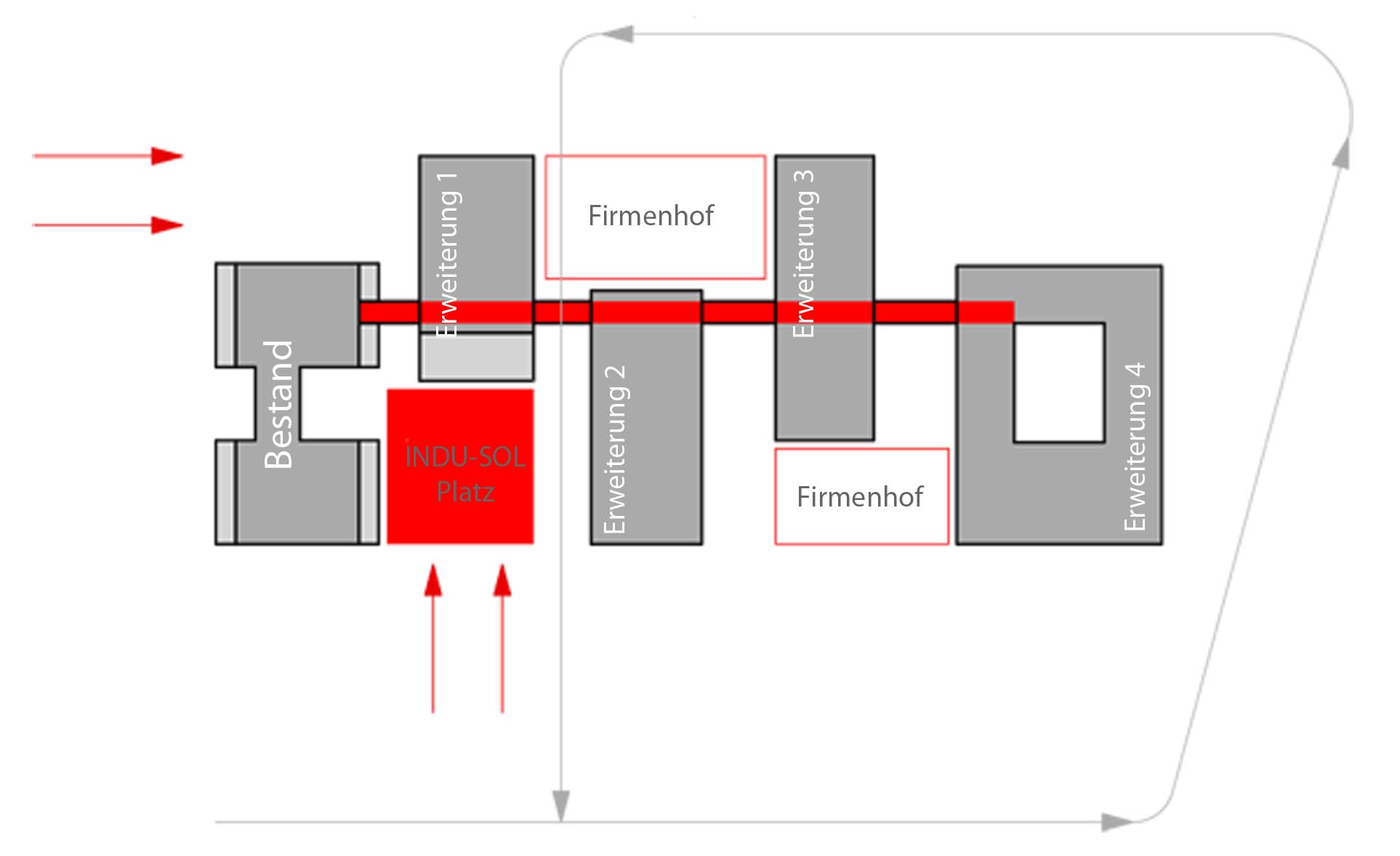
Bürohaus Indu-Sol GmbH
Schmölln, Thüringen
Neubau eines Büro- und Technologiegebäudes
als Erweiterung des bestehenden Bürohauses der Indu-Sol GmbH
 
Leistungen: Planung und Ausführung LP 1-5
Fertigstellung 
2019
 
	
 
				 
				
			
		 
		
		
		
			 
				
 
			 
			
								
	
		
			
			
				
	
LORENZUNDMICKEL Architekten
Partnerschaftsgesellschaft mit beschränkter Berufshaftung (PartGmbB)
Pariser Str. 44, 10707 Berlin
Telefon: +49 (0)30 23 605 200
E-Mail: architekten@lorenzundmickel.de